靶式流量計采用電容式力傳感器的是該新型產品真正實現高精度、高穩定性的關鍵核心,徹底改變了有應變片式靶式流量計溫漂大,抗過載(沖擊)能力差,存在靜態密封點等種種缺陷,不但發揮了靶式流量計原有的技術優勢,同時又具有與容積式流量計相媲美的測量準確度,加之其特有的抗干擾、抗雜質性能,除能替代常規流量所能測量的流量計量問題,尤其在小流量、高粘度、易凝易堵、高溫、低溫、強腐蝕、強震動等流量計量困難的工況中具有很好的適應性。目前已**應用于冶金、石油、化工、能源、食品、環保等各個領域的流量測量。
靶式流量計是新一代靶式流量計,集流量、溫度、壓力檢測功能于一體,采用**的單片機技術和電容式壓力傳感器,產品無可動部件,抗振動、抗雜質、抗干擾能力強;具有操作簡單,安裝容易,免維護,故障自檢,運行費用低等一系列特點。已**應用于半水煤氣、焦爐煤氣、重油、渣油計量、瀝青、液體石蠟、甲苯、硫酸、天然氣、甲烷氯化物、煙道氣、氯氣、污水、純凈水等以及其它特殊介質的計量,解決了多年來業內疑難流量計量。
工作原理:
當介質在測量管中流動時,因其自身的動能與靶板產生壓差,而產生對靶板的作用力,使靶板產生微量的位移,其作用力的大小與介質流速的平方成正比,靶板所受的作用力經靶桿傳遞,使傳感器的彈性體產生微量變化,從而打破貼片電容組成的電橋平衡。產生與流量在靶板上作用力對應的電壓信號:由流體流量特征的影響,流量與電橋產生的電壓的平方成正比。
特點
1、整臺儀表在設計中無可動部件,插入式結構,拆卸方便;
2、可選用多種防腐及耐高低溫材質(如哈氏合金,鈦等);
3、整機可做成全密封無死角(焊接形式),無任何泄漏點,可耐 42MPa 高壓;
4、儀表內設自檢程序,故障現象一目了然;
5、傳感器不與被測介質接觸,不存在零部件磨損,使用安全可靠;
6、可就地采用干式標定方法,即采用砝碼掛重法。單鍵操作可完成標定;
7、具有多種安裝方式供選擇,如選擇在線插入式,安裝費用低;
8、具有一體化溫度、壓力補償,直接輸出質量或標方;
9、具有可選小信號切除、非線性修正、濾波時間可選擇;
10、能準確測量各種常溫、高溫500度、低溫-200度工況下的氣體、液體流量;
11、計量準確,精度可達到 0.2%;
12、重復性好,一般為 0.05~0.08%,測量快速;
13、壓力損失小,僅為標準孔板的 1/2△P 左右;
14、抗干擾,抗雜質能力特強;
15、可根據實際需要更換阻流件(靶片)而改變流量范圍;
16、低功耗電池現場顯示,能在線直讀示值,顯示屏可同時讀取瞬時和累積流量及百分比棒圖;
17、安裝簡單方便,極易維護;
18、多種輸出形式,能遠傳各種參數;
19、抗震動性強,一定范圍內可測脈動流;
主要技術參數:
| 被測介質 | 液體;氣體;蒸汽 | |||||
| 公稱直徑 | 法蘭式 15~520mm | 夾裝式 15~500mm | 插入式 65~3200mm | |||
| 公稱壓力 | 0.5~48MPa | 0.6~42MPa | 0.6~42MPa | |||
| 介質溫度 | -200℃~+500℃或更高溫度 | |||||
| 精確度 | ±0.2% | ±0.5% | ±1.0% | ±1.5% | ||
| 范圍度 | 1:3(液體) 1:10(蒸汽) | 1:5(液體、氣體) | 1:10(液體、氣體) | 1:10(蒸汽) | ||
| 補償形式 | 溫度補償;壓力補償 | |||||
| 重復性 | 0.05%~0.08% | |||||
| 供電電源 | 機內自備鋰電池(3.6V);外供電源 24VDC | |||||
| 輸出形式 | 現場顯示;4~20mA 二線制;脈沖 0~5V;RS465/RS132;GPRS 無線遠傳 | |||||
| 測量管材料 | 碳鋼;不銹鋼;亦可按用戶要求協商提供 | |||||
| 防爆等級 | 本安型(ExiaIICT4); 隔爆型(ExdIICT4) | |||||
| 防護等級 | IP65;IP67 | |||||
| 法蘭規格 | 流量計連接法蘭規格執行 GB/T 系列標準,也可以根據用戶要求特殊加工。 | |||||
靶式流量計選型表:
型號 | 口徑 | 靶式流量計 | |||||||
XT-SBL | 10~5000 | ||||||||
代號 | 儀表類型 | ||||||||
A* | 錐管螺紋式 | ||||||||
A | 管道法蘭式 | ||||||||
B | 夾裝式 | ||||||||
C | 插入式 | ||||||||
D | 在線可拆裝式 | ||||||||
E | 其它 | ||||||||
代號 | 介質類型 | ||||||||
Y | 液體 | ||||||||
Q | 氣體 | ||||||||
Z | 蒸汽 | ||||||||
代號 | 介質溫度 | ||||||||
D | 低溫(-30℃~-200℃) | ||||||||
C | 常溫(-20℃~+80℃) | ||||||||
Z | 中溫(+80℃~+200℃) | ||||||||
G | 高溫(+200℃~+500℃) | ||||||||
公稱壓力 | A:0.6MPa B:1.0MPa C:1.6MPaD:2.5MPa E:4.0MPa F:5.0MPaG:10.0MPa H:15.0MPa I:20.0MPaJ:25.0MPa K:42.0MPa L:2.0MPaM:6.3MPa N:11.0MPa O:16.0MPaP:26.0MPa | ||||||||
補償形式 | P:壓力補償 | T:溫度補償 | |||||||
輸出形式 | N | 無輸出(內置鋰電池表頭顯示) | |||||||
S | 脈沖輸出 | ||||||||
R | 通訊輸出 | ||||||||
I | 4~20mA電流輸出(二線制) | ||||||||
K | 報警開關量輸出 | ||||||||
G | GPRS無線遠傳 | ||||||||
防爆結構 | X | 本安型 | |||||||
Y | 隔爆型 | ||||||||
殼體材料 | T | 碳鋼 | |||||||
N | 不銹鋼 | ||||||||
Q | 特殊材料 | ||||||||
傳感器材質 | 1 | 哈氏合金 | |||||||
2 | 鈦 | ||||||||
3 | 304不銹鋼 | ||||||||
4 | 特殊材料 | ||||||||
靶式流量計安裝注意事項:
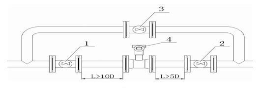
不允許直接在流量計測量管前后端安裝閥門、彎頭等極大改變流體流態的部件,如果需要在流量計前后管道上安裝閥門、彎頭等部件也應盡量保證前后直管段長度,直管段要求前10D,后5D,對于新完工的工藝管道,應**行初步吹掃后再安裝流量計。
1、高溫型(80度至700度)、常溫型(-40度至80度)、低溫型(-40至-200度)流量計的安裝:
a、常溫型、低溫型、高溫型流量計視不同工況采用水平、垂直或倒置式安裝(以出廠校驗單為準);
b、介質工作溫度在300度以上時,用戶應對流量計殼體采取隔熱措施防止熱輻射損壞表頭(表頭工作溫度為-30至70度),同理工作溫度-100度以下的介質,也要采取防凍措施;
c、為保證流量計準確計量,要求設置前后直管段;(圖8)
d、為保證流量計在檢查及更換時不影響系統工作,應盡量設置旁通閥(3)及切斷閥(1、2);(圖8)
e、因工藝需要可采用垂直安裝,被測介質流向可由下至上,也可由上至下,但訂購時應向供貨方說明;
f、流量計口徑與相連的管道口徑尺寸盡量相同,以減少流動干擾,造成計量誤差;
g、法蘭式和夾裝式流量計安裝時,應注意法蘭之間密封墊片內孔尺寸大于流量計和工藝管道通徑 6-8mm 及否同軸,以避免因其產生干擾流而影響計量精確度;
h、插入式流量計安裝時,將短管及法蘭焊到管道上時必須確保流體正對著靶片受力面,焊接短管高度在100mm(從管道內壁至法蘭密封面的距離);(圖9)
i、對于新完工的工藝管道,應**行初步吹掃后再安裝流量計;
j、測量管外壁上箭頭所指方向為被測介質流向;
k、流量計殼體必須可靠接地,若無接地條件應向廠方說明;
l、流量計連接法蘭規格執行GB/T系列標準,也可以根據用戶要求特殊加工(以出廠校驗單為準)。

1 ?2 ?3 分別為前后閥和旁通閥;4 為流量計,L≥10D 和L≥5D分別為前后直管段長度,D為管道公稱直徑。





